基于拓扑优化的3D打印混凝土柱的受力性能研究
2019年06月05日 09:04         所属学院: []          点击:


大学生创新训练项目申请书

 

 

项目编号     s201910536005                               

项目名称  基于拓扑优化的3D打印混凝土柱的受

  

  • 如果您无法在线浏览此 PDF 文件,则可以

  • 下载免费小巧的 福昕(Foxit) PDF 阅读器,安装后即可在线浏览  或

  • 下载免费的 Adobe Reader PDF 阅读器,安装后即可在线浏览  或

  • 下载此 PDF 文件

                       

项目负责人    何超    联系电话 18774889601  

所在学院           土木工程学院             

    201608020628 专业班级   建工1601  

指导教师              蒋友宝                

E-mail        1249021180@qq.com          

申请日期           2019年4月30日          

起止年月       2019年5月至2020年5月      

长沙理工大学

 


一、 基本情况

项目

名称

基于拓扑优化的3D打印混凝土柱的受力性能研究

所属

学科

学科一级门:

工学

学科二级类:

土木类

申请

金额

20000   元

起止年月

2019年  5 月至  2020 年  5  

负责人

姓名

何超

性别

民族

出生年月

 1999   3 

学号

201608020628

联系

电话

宅:          手机:18774889601

指导

教师

蒋友宝

联系

电话

宅:          手机:15674866727

负责人曾经参与科研的情况

 

 

 

指导教师承担科研课题情况

主持了国家自科基金面上和青年项目2项、国家重点基础研究发展计划(973)项目子课题1项等多项课题研究,参与了交通部重大科技专项等10余项科研课题的研究。主要负责课题有:

1) 永利集团88304官网土木工程优势特色重点学科创新性项目,预制拼装3D打印混凝土拱受力性能与承载力设计,2018/11-2020/12,主持人,在研。

2) 国家自科基金面上项目,51678072,基于高维复杂函数零残差拟合方法的大型结构失效模式分析与设计改进,2017/01-2020/12,主持人,在研。

3) 国家自然科学基金青年项目,11102029,基于支持向量的高效生成与正确分类技术的大型结构可靠度分析方法研究,2012/01-2014/12,主持人,已结题。

4) 国家重点基础研究发展计划项目子课题,2015CB057705,特大跨桥梁安全评定,2015/01-2019/08,子课题主持人,在研。

5) 湖南省“湖湘青年英才支持计划”项目,2016RS3030,考虑失效模式不确定的大型结构可靠性设计与评估,2016/01-2018/12,主持人,已结题。

6) 永利集团88304官网“青年英才支持计划”项目,基于先进响应面技术的大型结构失效方程模拟与稳健性设计研究,主持人,在研。

7) 横向课题,岳阳三荷机场航站楼索膜结构施工期全过程安全控制关键技术研究,2018/1-2018/12,子项负责人,已结题。

 

已出版的主要著作:     

张建仁,王磊,彭建新,蒋友宝.服役钢筋混凝土桥梁时变可靠性评估与剩余寿命[M],北京:科学出版社,2017

杨春侠,蒋友宝,张振浩,金霞飞.荷载与结构设计方法[M],湖南:中南大学出版社,2016

  

已发表的学术论文:

在“Engineering Structures”“Structural Safety”ASCE “Journal of Structural Engineering”、《建筑结构学报》等国内外刊物上发表学术论文50余篇,其中SCI收录8篇,EI收录20余篇;代表性论文有:

1) Youbao Jiang*,Hao Zhou,Michael Beer,Lei Wang,Jianren Zhang,Linjie Zhao.Robustness of Load and Resistance Design Factors for RC Columns with Wind-Dominated Combination Considering Random Eccentricity. Journal of Structural Engineering ASCE,2017,143(4): 04016221.

2) Youbao Jiang*,Linjie Zhao,Michael Beer,Edoardo Patelli,Matteo Broggi,Jun Luo,Yihua He,Jianren Zhang.Multiple response surfaces method with advanced classification of samples for structural failure function fitting. Structural Safety, 2017, 64 (2017):87-97.

3) Youbao Jiang*, Qing Cao, Xuan Kong, Guoyu Liao. Stiffness study of inner concave cablearch structure based on an efficient method. Advances in Structural Engineering,2016,19(12): 1927- 1939.

4) Youbao Jiang*, Guoheng Sun, Yihua He, Michael Beer ,Jianren Zhang. A nonlinear model of failure function for reliability analysis of RC frame columns with tension failure. Engineering Structures, 2015, 98(2015) :74-80.

5) Youbao Jiang*, Jun Luo, Guoyu Liao, Yulai Zhao, Jianren Zhang. An efficient method for generation of uniform support vector and its application in structural failure function fitting. Structural Safety, 2015, 54(2015) :1-9.

6) Youbao Jiang*, Weijun Yang. An approach based on theorem of total probability for reliability analysis of RC columns with random eccentricity. Structural Safety, 2013, 41(1):37-46.

7) Lei Wang*,Ju Yi,Jianren Zhang,Youbao Jiang,Xuhui Zhang. Effect of corrosion- induced crack on the bond between strand and concrete[J]. Construction & Building Materials,2017,153: 598-606.

8) Cai Jianguo*;Zhang Qian;Jiang Youbao;Xu Yixiang;Feng Jian; Deng Xiaowei. Nonlinear stability analysis of a radially retractable hybrid grid shell in the closed position[J], Steel and Composite Structures,2017,24(3): 287-296.

9) 蒋友宝,廖国宇,谢铭武.钢筋混凝土框架柱和轻钢拱结构失效方程复杂特性与设计可靠度[J].建筑结构学报,2014, 35(4):192- 198.

 

指导教师对本项目的支持情况

 

全程指导项目技术路线制定,试验方案的确定,监督项目的完成情况等。

 

姓   名

学号

专业班级

所在学院

项目中的分工

何超

201608020628

建工1601

土木工程学院

对设计好的柱结构进行拓扑优化

邹昀彤

201608020605

建工1602

土木工程学院

进行相关性质的对比试验

刘亚兰

201608021003

建工1601

土木工程学院

设计混凝土柱结构

肖杨

201608021218

建工1601

土木工程学院

3D打印设备建造混凝土柱

二、 立项依据

(一) 项目简介

运用拓扑优化技术,对传统的钢筋混凝土柱进行结构优化,提高其承载能力与美观程度,接着将优化成果与传统结构进行对比实验,对实验数据进行分析,最终发表学术论文一篇。

 

(二) 研究目的

1)采用先进拓扑优化设计技术对普通柱结构进行优化,即提升承载力性能,又使外形更加美观。

2)利用混凝土3D打印设备,解决传统技术条件无法满足经拓扑优化后柱的建造需求的问题。

 

(三) 研究内容

1) 基于Ansys软件对普通柱结构进行拓扑优化,得出多种优化方案,并进行分析比较;

2) 利用3D打印技术建造优化后的混凝土柱模型;

3) 与普通混凝土柱开展对比试验,对3D打印混凝土柱的受力性能进行深度研究。

 

 

(四) 国、内外研究现状和发展动态

3D打印技术出现在20世纪90年代中期,实际上是利用光固化和纸层叠等方式实现快速成型的技术。3D打印技术日益完善,不仅可以打印小件物品,而且这项技术甚至可以彻底颠覆传统的建筑行业。2013年1月,荷兰建筑师Janjaap Ruijssenaars与意大利发明家Enrico Dini(D-Shape 3D打印机发明人)一同合作,他们计划打印出一些包含沙子和无机粘合剂的6×9(米)的建筑框架,然后用纤维强化混凝土进行填充。最终的成品建筑会采用单流设计,由上下两层构成。该工程在2014年完成。

     

    3D打印混凝土建筑框架             3D打印混凝土步行桥

2019年1月12日,世界最大规模3D打印混凝土步行桥在上海落成启用,该步行桥全长26.3米、宽度3.6米,借取了中国古代赵州桥的结构方式,采用单拱结构承受荷载,拱脚间距14.4米。工程由清华大学(建筑学院)——中南置地数字建筑研究中心徐卫国教授团队设计研发,并与上海智慧湾投资管理公司共同建造。

尽管近年来许多国内外的科研机构及建造公司致力于3D混凝土打印建造的技术攻关,但还没有真正将这一技术用于实际工程。上海3D打印步行桥的建成,标志着该技术从研发到实际工程应用迈出了可喜的一步,也标志着中国3D混凝土打印建造技术已跨入世界先进水平。

 

3D打印混凝土结构配筋方式的发展现状

3D打印混凝土结构的钢筋一体化技术发展较慢。目前采用的打印材料主要是以混凝土为基材,存在着抗拉强度低、抗裂性能差、构件易脆性破坏等问题。为改善3D打印混凝土结构的性能,很多学者提出了一些改进措施,如在混凝土中掺和纤维[12],通过不连续离散纤维的掺入可以提高打印混凝土的强度和韧性,但对材料延展性会有一定影响。Jian Hui Lim等[13]通过在喷嘴挤压砂浆时直接夹带连续钢索(图3),从而形成混合增强材料,提高地质聚合物复合材料的抗弯强度和延性;并对配置不同的钢索进行了试验,结果表明,钢索的加固使3D打印混凝土的抗弯强度提高了290%,但对最优的配筋位置、形状和材料还需进一步研究。Guowei Ma等[14]也提出了3D打印水泥基材料的同步植筋方法,并研制了一种新型的微筋增强地聚合物复合材料。这与Jian Hui Lim等[13]采用的方式相似,通过在打印头侧面开洞,边挤出混凝土边伸入钢丝,以提高打印混凝土结构的力学性能。但此方法所插入的钢筋直径不能过大,一般不超过2mm。这些配筋技术能否适用于承载力要求高的大跨度结构等,还有待进一步验证。Asprone D[15]等采用3D打印混凝土技术制作了一根钢筋混凝土梁。通过将钢筋混凝土梁分割成不同混凝土部件进行单独打印,然后通过体外张拉预应力筋组装成一个完整的钢筋混凝土梁构件。而另一种思路,即采用3D打印混凝土作为传统钢筋混凝土的模板[16],放入钢筋笼后浇筑混凝土,但这种方式需要人工参与过多,未能充分发挥3D打印混凝土自动化建造的真正优势。

上述这些配筋方式的提出,为3D打印混凝土结构中布置钢筋提供了很好思路。但迄今为止,还没有开发出一种利用现有的3D打印混凝土技术生产传统的钢筋混凝土构件(即由混凝土和钢筋组成)的有效方法[5],只能在局部采用钢筋网片或钢筋进行加强。原因包括现有打印技术多为单组份材料打印,对于多种材料打印或双组份方式进行打印的技术还有待发展;再者,金属粉末打印材料价格高昂,对于建筑物这种大体量的模型,直接打印钢筋成本将非常巨大。另外,传统的钢筋加强系统(以硬、直、粗钢筋或钢筋杆的形式)在3D打印过程中对特定或复杂的形状也缺乏适应性。

另一种新型技术,拓扑优化因其不依赖初始构型及工程师经验,可获得完全意想不到的创新构型,受到学者以及工程人员的广泛关注。通俗地讲,拓扑优化就是利用优化的手段,寻找结构内部哪里需要布置材料,布置何种材料,在保证一定约束下获取最优的性能。然而,拓扑优化结果几何构型复杂,采用传统建造工艺制备非常困难,因此拓扑优化方法与实际工程结构设计之间仍存在较大的鸿沟。而将其与3D打印混凝土技术一起使用,则是一桩天作之合,其发展创新设计技术具有广阔的前景,已引起学术界的广泛关注。

 

 

梁拓扑优化案例

 

Arup ,一家因建筑领域标志性作品而闻名全球的跨国咨询公司,该公司一直研究采用3D打印混凝土技术与拓扑优化技术结合的可能性,Arup将优化设计与增材建造结合应用于建筑行业,目前,国内也有一些专家学者们,对类似的项目进行了研究。华侨大学杨志艺结构拓扑优化是为了在满足负荷要求前提下通过寻找最优力学体系或材料分布来减轻自重或体积,从而达到材料最少或者经济节约的目的。

 

 

 

 

参考文献

 

[1]世界最大规模3D打印混凝土步行桥在上海落成启用.中国新闻网[2019.1.13].

[2]佚名.“轮廓工艺”3D打印技术[J].机械工程师, 2014 (3) :5.

[3]李旋.3D打印混凝土配合比设计及其基本性能研究[D].华中科技大学, 2014.

[4]S. Lim, R.A. Buswell, T.T. Le, S.A. Austin, A.G. Gibb, T. Thorpe. Developments in construction-scale additive manufacturing processes, Autom. Constr. 21(2012) 262268.

[5]A. Tibaut, D. Rebolj. Interoperability requirements for automated manufacturing systems in construction, J. Intell. Manuf. (2014)

[6]E. Lloret, A.R. Shahab, M. Linus, R.J. Flatt, F. Gramazio, M. Kohler, S. Langenberg. Complex concrete structures: merging existing casting techniques with digital fabrication, Comput. Aided Design 60 (2015) 4049.

[7]Domenico Asprone,Costantino Menna,Freek P Bos,et al.Rethinking reinforcement for digital fabrication with concrete[J]. Cement and Concrete Research, 2018, 112(1): 111-121.

[8] C. Scott, Chinese Construction Company 3D Prints an Entire Two-Story House On-Site in 45 Days, 3dprint.com, 2016, 1720, https://3dprint.com/138664/ huashang- tengda-3d-print-house/ (accessed March 20, 2017).

[9]Perrot A,Rangeard D,Pierre A.Structural built-up of cement-based materials used for 3D-printing extrusion techniques[J]. Materials & Structures,2016,49( 4):1213-1220

[10]霍亮,蔺喜强,张涛.混凝土3D打印技术及应用[M].北京:地质出版社.2018.

[11]Ma G , Li Z , Wang L . Printable properties of cementitious material containing copper tailings for extrusion based 3D printing[J]. Construction & Building Materials, 2018, 162:613-627.

[12]张大旺,王栋民,朴春爱等.钢渣掺量对3D打印地质聚合物材料新拌浆体流变性的影响[J].应用基础与工程科学学报,2018,26(3):596-604

[13]Biranchi Panda, Suvash Chandra Paul, Ming Jen Tan.Anisotropic mechanical performance of 3D printed fiber reinforced sustainable construction material[J]. Materials Letters.2017,209(1):146149.

[14]Lim J H , Panda B , Pham Q C . Improving flexural characteristics of 3D printed geopolymer composites with in-process steel cable reinforcement[J]. Construction & Building Materials, 2018, 178:3241.

[15]Guowei Ma,Zhijian Li,Li Wang,Gang Bai. Micro-cable reinforced geopolymer composite for extrusion-based 3D printing[J]. Materials Letters2019,235(1):144-147.

[16]Asprone D, Auricchio F, Menna C, et al. 3D printing of reinforced concrete elements: Technology and design approach[J]. Construction & Building Materials, 2018, 165:218-231.

[17]Wu P, Wang J, Wang X. A critical review of the use of 3-D printing in the construction industry[J]. Automation in Construction, 2016, 68:21-31.

[18]田仲初.大跨度钢箱拱桥的施工控制关键技术与动力特性研究[D]. 中南大学, 2007.

[19]Halding P S,Hertz K D,Schmidt J W, et al.Full-scale load tests of Pearl-Chain arches[J]. Engineering Structures, 2017, 131:101-114.

[20]易壮鹏.几何缺陷对拱结构力学性能的影响[D]. 湖南大学, 2007.

[21]敬人可,李建增,周海林.超声无损检测技术的研究进展[J].国外电子测量技术,2012,31(7):28-30

 

 

 

 

 

 

(五) 创新点与项目特色

拓扑优化后柱的几何构型复杂,采用传统工艺建造非常困难,即使满足了建造需求,但其成果可能无法达到预期的性能效果,甚至比传统建造产品性能差。

3D打印混凝土技术紧密融合数字化建模技术,使复杂曲面结构的建造成为可能。它颠覆了传统建造技术的局限,解决了产品研发存在的“设计受限于建造技术问题。

因此,将拓扑优化(先进设计技术)与3D打印混凝土技术(先进建造技术)融合,可以充分发挥两种技术的优点,并可以大大降低成本,节约材料,减少人工投入,高效节能,对发展创新设计技术具有广阔的前景

 

(六) 技术路线、拟解决的问题及预期成果

一.运用极限状态设计法,设计钢筋混凝土柱结构,使用Ansys软件对承重柱结构进行拓扑优化,考虑不同的偏心矩得出多种优化方案。

 

二.通过简单的材料实验找到最优配合比,运用3D打印混凝土软件及机器制作优化后模型柱,浇筑养护传统钢筋混凝土承重柱。

1、找到最优配合比:

混凝土配合比设计在满足结构设计对混凝土强度、流动性和凝结时间的基础上进行改进实验。如选取不同的外加剂、水灰比、砂率等等进行试验。经过试配、性能测试结果选定基准配合比, 再通过打印试验验证配合比的可行性后确定最终配合比。

(1) 首先通过控制变量法保证砂率不变, 改变水灰比, 得到水灰比对流动性的影响;随后选择固定水灰比,改变砂率,得到砂率对流动性的影响;最后通过坍落度试验, 对比各个不同配比下混凝土的流动性, 并且通过由针孔和针筒组成的喷头来进行模拟挤出过程, 从而选择出最优配比的混凝土材料。

(2)外加剂的选择:速凝剂、减水剂、碳纤维或钢纤维。进行对照试验,比较不同外加剂对材料成型的影响。速凝剂可以加快混凝土凝结时间,同时为了抑制强度降低趋势加入碳纤维或者钢纤维。通过对照试验得到最佳添加量。

2.进行3D打印建造

(1)3D打印主要工作原理是利用计算机将要打印的建筑进行模型分割, 并将三维图形信息转化成打印路径及速度信息, 然后由数控程序控制打印设备, 使打印头按照计算机预先处理好的路径运动, 打印头挤出的打印材料逐层叠加,从而实现数字化建造

(2)建筑3D打印控制软件主要实现输料智能控制、布料智能控制和打印路径控制。其涉及机械设备、自动化控制、软件开发等多个专业技术领域。混凝土3D打印主要分为5个步骤:混凝土配合比设计→混凝土制备→数字建模并打印成型→成品养护。

 

三.对两试件分别进行相关性能的对比试验,记录数据,对实验数据进行统计分析,并得出结论,根据结论进行优化改进。

主要进行偏心受压柱正截面承载力测定

(1)准备工作

试验共制作了2根试件, 截面形状为矩形, 尺寸根据设计确定,纵向钢筋选用6根直径为16 mm的带肋钢筋, 箍筋采用ϕ8@100, 试件共分2组, 偏心距为20,40 mm,分别为钢筋混凝土柱、3D混凝土打印柱。

(2)试验方法

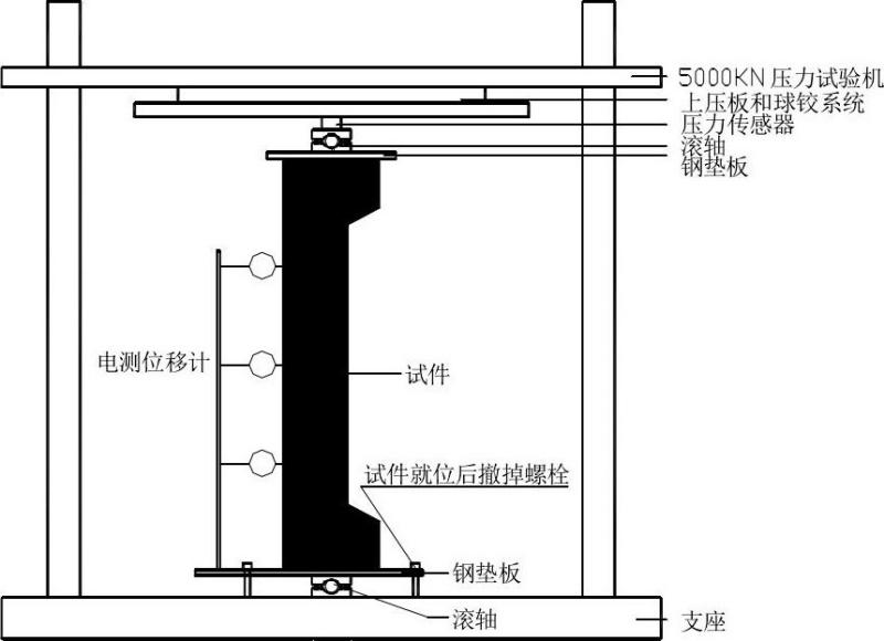
  试验是在500 t的液压试验机上进行, 为了保证试件的加载位置和两端的自由转动, 试件的上下两端均采用单刀铰支座, 试验中采用千分表测量试件的跨中侧向挠度, 试验机自带传感器采集竖向挠度.

 

 

 

试验装置简图

(3)材性试验详参轴心受压构件正截面测定时的数据

(4)大小偏压的判定

 

 

 

技术路线:

 

 

 

 

 

 

 

 

 

 

 

 

 

 

 

 

 

 

技术路线流程图

 

 

预期成果:获得经优化设计并建造完成的3D打印混凝土柱、发表论文一篇

 

(七) 项目研究进度安排

2019年进度安排及目标

1. 目标

1) 熟悉掌握以Ansys为核心的有限元软件进行拓扑优化;

2) 使用3D打印混凝土软件及仪器打印优化后的混凝土柱,与传统试件进行相关性质的对比试验。

2. 进度安排

1) 2019年1月-6月,完成承重柱的结构设计与拓扑优化处理;

2) 2019年7月-12月,完成模型制作与对比试验,并进行数据记录。

2020年进度安排及目标

1. 目标

 归纳实验结果,根据不同的数学统计方法,将实验数据对比分析,根据实验结果对3D打印混凝土技术作出改进,对此次技术革新的可行性得出结论。

2. 进度安排

 2020年1月-6月,完成对实验结果的数据分析,提出改进方案,完成一篇关于“3D打印混凝土技术基于拓扑优化后柱的承载能力分析”论文。

 

 

(八) 已有基础

1. 与本项目有关的研究积累和已取得的成绩

本项目成员通过与研究生学长、导师的交流,完成了项目前期的预研工作,对3D打印混凝土技术和拓扑优化方法有了一定的认识,具备一定的科研条件。

申请团队及其指导团队长期以来一直致力于大型复杂结构分析与设计方面的研究,完成了较多的积累,对大型钢筋混凝土拱结构的分析与设计已有较多研究。同时,对服役构件微损伤的非线性声学检测,复杂关键部件微裂纹的非线性AU检测与评估等方面也做了大量的研究工作;完成了多项大型结构的静力加载试验、抗震性能试验等工作,且多次应用通用有限元分析软件进行钢筋混凝土拱桥、钢筋混凝土框架结构等实体工程的优化设计,解决了多项工程技术难题。

最近,指导团队与国内外从事3D打印混凝土技术方面的专家开展了较多的交流,并主持了关于3D打印混凝土结构设计优化的重点学科资助项目1项,具备了较好的研究基础。目前,已发表与申报项目密切相关的期刊论文40余篇,其中SCI/EI收录30余篇;获省部级科技奖4次。

 

2. 已具备的条件,尚缺少的条件及解决方法

1)已具备的条件

学院已采购一套混凝土3D打印设备,该设备可用于从复合材料到混凝土制品、工艺品、构件等多种试样的试验研究,同时还适用于超复杂的大尺寸建筑构件的设计制作,可满足本项目试验所需。本单位拥有多套大型结构分析软件ABAQUS、ANSYS等的正版权,可满足本项目中计算分析的要求;且数据库资源丰富,能及时检索到最新的研究资料,这些均为项目的开展提供了条件。

另外,申请团队所依托的永利集团88304官网结构试验中心,拥有“南方地区桥梁长期性能提升技术”国家与地方联合工程实验室、“桥梁工程安全控制”教育部重点实验室,配备齐全了主要的工程材料试验、结构试验与工程检测的仪器设备,如MTS大型结构试验系统、10000kN的电液伺服压剪试验机、FCS电液伺服加载系统、静力数据自动采集系统TDS-303(日本)、动态信号采集处理系统、Leica全自动变形观测系统(瑞士)等设备。

 

 

 

 

   

3D打印机                              搅拌系统

 

 

 

      

3D打印混凝土成品图

2)缺少的条件

①为了使优化后的柱结构具有更优的承载能力,我们需解决在考虑压弯情况下拓扑优化后柱如何配筋的问题现阶段的3D混凝土打印技术目前采用的打印材料主要是以混凝土为基材,存在着抗拉强度低、抗裂性能差、构件易脆性破坏等问题而目前3D打印混凝土结构的钢筋一体化技术发展较慢配筋技术仍然处于不成熟的阶段。

②由于经拓扑优化后的柱体普遍具有复杂曲面的形式,为了避免3D混凝土在打印过程中出现坍落速度过快,凝结速度慢,混凝土各层粘结力不足的问题,我们必须根据优化过程中可能出现的问题,确定混凝土的最优配合比、以及考虑外加剂的添加或其他新型材料的选用

 

3)解决办法

①参考国外技术的一些发展动态,并结合实际条件,可相应的采取一些办法,例如通过在打印头侧面开洞,边挤出混凝土边伸入钢丝等方法,亦或者在局部采用钢筋网片或钢筋进行加强及在后期加预应力,增强其整体强度。

②从改善混凝土的强度入手,从而避免配筋的问题,例如考虑速凝剂、减水剂、碳纤维或钢纤维的利用,通过在混凝土基材中加入纤维材料和细骨料的方法来提高其抗拉强度和各项性能指标。

混凝土配合比设计在满足结构设计对混凝土强度、流动性和凝结时间的基础上进行改进实验。如选取不同的外加剂、水灰比、砂率等等进行试验。经过试配、性能测试结果选定基准配合比, 再通过打印试验验证配合比的可行性后确定最终配合比。

 

 

三、 经费预算

开支科目                    

预算经费

(元)

主要用途       

阶段下达经费计划(元)

前半阶段

后半阶段

预算经费总额

20000

 

15000

5000

1. 业务费

6400

 

 

 

1)计算、分析、测试费

200

实验室的租借

200

 

2)能源动力费

1000

电费

1000

 

3)会议、差旅费

0

 

 

 

4)文献检索费

200

相关书籍资料费

软件咨询费

200

 

5)论文出版费

5000

出版一篇论文

 

5000

2. 仪器设备购置费

0

 

 

 

3. 实验装置试制费

1600

测试仪器

1600

 

4. 材料费

12000

混凝土等原材料

外加剂

运费

12000

 

学校批准经费

20000

 

 

 

 

四、 指导教师意见

 

 

 

 

                                           

 

导师(签章):

年  月   日

五、 院系大学生创新创业训练计划专家组意见 

 

 

 

 

                                     

专家组组长(签章):

年  月   日

六、 学校大学生创新创业训练计划专家组意见

 

 

 

                                    

 

 

负责人(签章):

年  月   日

 

七、 大学生创新创业训练计划领导小组审批意见

 

 

 

                                    

 

负责人(签章):

年  月   日